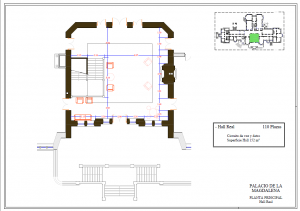
Hall Real
Español
Contenedor Gavias lozin
Hall Real
Hall Real
- Máximo 80 plazas en formato aula y 120 plazas en cóctel (otros formatos consultar)
- Sistema Bosch DICENTIS de conferencia
- Sistema Micrófonos Inalámbricos de Mano, Solapa o Diadema
- Circuito de voz y datos
- CCTV (Circuito Cerrado de TV) Un codificador o decodificador AV sobre IP confiable y de alto rendimiento que transporta video 4K60 de Crestron
- WIFI
- Superficie Hall 127,62 m2
Galería 1

Hall Real

Hall Real

Hall Real

Hall Real
%20(1).jpg)
Hall Real
.jpg)
Hall Real
.jpg)
Hall Real
.jpg)
Hall Real
.jpg)
Hall Real
.jpg)
Hall Real
Galería 2
.jpg)
Hall Real
.jpg)
Hall Real
.jpg)
Hall Real

Hall Real

Hall Real

Hall Real

Hall Real
.jpg)
Hall Real
.jpg)
Hall Real
%20(1).jpg)
Hall Real